1/19

玄関 勝手口 出入口用網戸 しまえるんですα 【094185】横幅W:500~940 高さH:1821~1850 に対応 元楽天市場ガラス建材の高山が販売しています!

¥23,760 税込

なら 手数料無料の 翌月払いでOK

この商品は送料無料です。

玄関 勝手口 出入口用網戸
しまえるんですα LIXIL TOSTEM
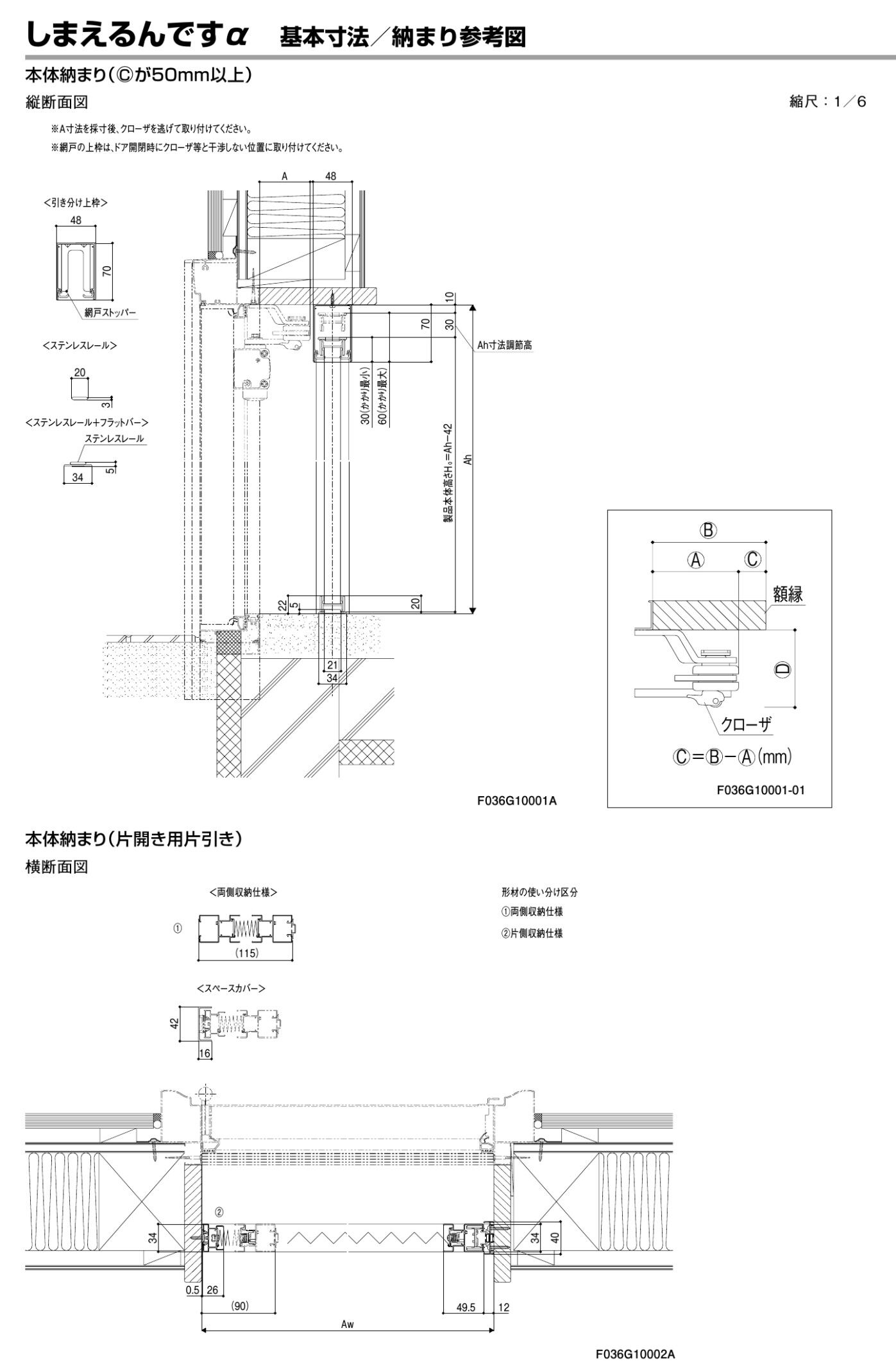
片開き用(片引き)094185
横幅W:500~940 
高さH:1821~1850 に対応 
アルミフレーム色は6色の中から選択可能
元楽天市場ガラス建材の高山が販売しています!
ドアクローザーカバー他オプション品は別売りとなっております。


※商品仕様※
商品名:玄関 勝手口 出入口用網戸 しまえるんですα【094185】
対応サイズ:横幅W:500~940 高さH:1821~1850

簡単施工でお手軽に取り付け可能!
「しまえるんですα」は、出入口用の優れた網戸で、手軽に取り付けができるだけでなく、外れにくい設計が特徴です。玄関や勝手口に最適で、これからの季節に大活躍します!

※取り付けに際しての注意点※
・ご希望のサイズに適したものを選択してください。
・施工に関するアドバイスは現場担当者にご確認ください。
・施工方法によっては、お手伝いが必要な場合がありますので、あらかじめご了承ください。

※品質について※
元楽天市場ガラス建材の高山が自信を持って提供する商品です。お客様の快適な暮らしのために、安心してご使用いただけます!

ぜひこの機会に、「しまえるんですα」をお試しください!

LIXIL しまえるんですα WEBカタログ
https://webcatalog.lixil.co.jp/cgi-bin/openCatalogAuth.cgi?c=DK4300&p=1

商品をアプリでお気に入り
  • 送料・配送方法について

  • お支払い方法について

¥23,760 税込

送料無料

最近チェックした商品
    その他の商品